Volver
ALQUILER TEMPORAL DE APARTAMENTO DE LUJO JUNTO AL PARQUE EL RETIRO
142
m2
3
habitación
habitaciones
2
baño
baños
6
persona
personas
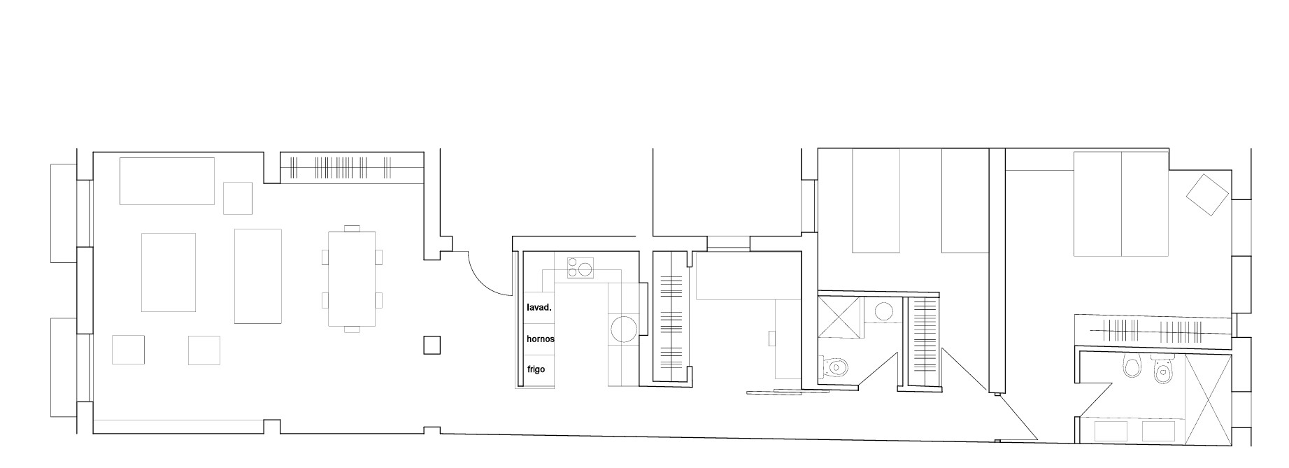
Ver plano
Características
Balcón
Planta 5
Portero automático
Vistas
Ascensor
Equipamiento
Aire acondicionado
Aspiradora
Batidora
Cafetera
Calefacción
Hervidor
Horno
Lavadora
Lavavajillas
Menaje
Microondas
Nevera
Plancha
Sábanas
Secador Pelo
Televisión
Toallas
Tostadora
Vitrocerámica
Wifi
Larga estancia
9 meses o más
3995
€
Media estancia
De 4 a 8 meses
4145
€
Corta estancia
De 1 a 3 meses
4495
€
Elegante apartamento exterior con balcones, de 3 dormitorios, junto al Retiro
*Descripción en breve*
*Precio de corta estancia incluye suministros
*Plano orientativo
Nº de registro:
ESFCNT00002810400001121200000000000000000000000000001




























%2520PORTADA.webp)




