FANTASTIC DUPLEX APARTMENT FOR RENT IN BARRIO SALAMANCA
Features
Equipment
Long stay
Medium stay
Short stay
Beautiful renovated duplex for rent in Barrio Salamanca
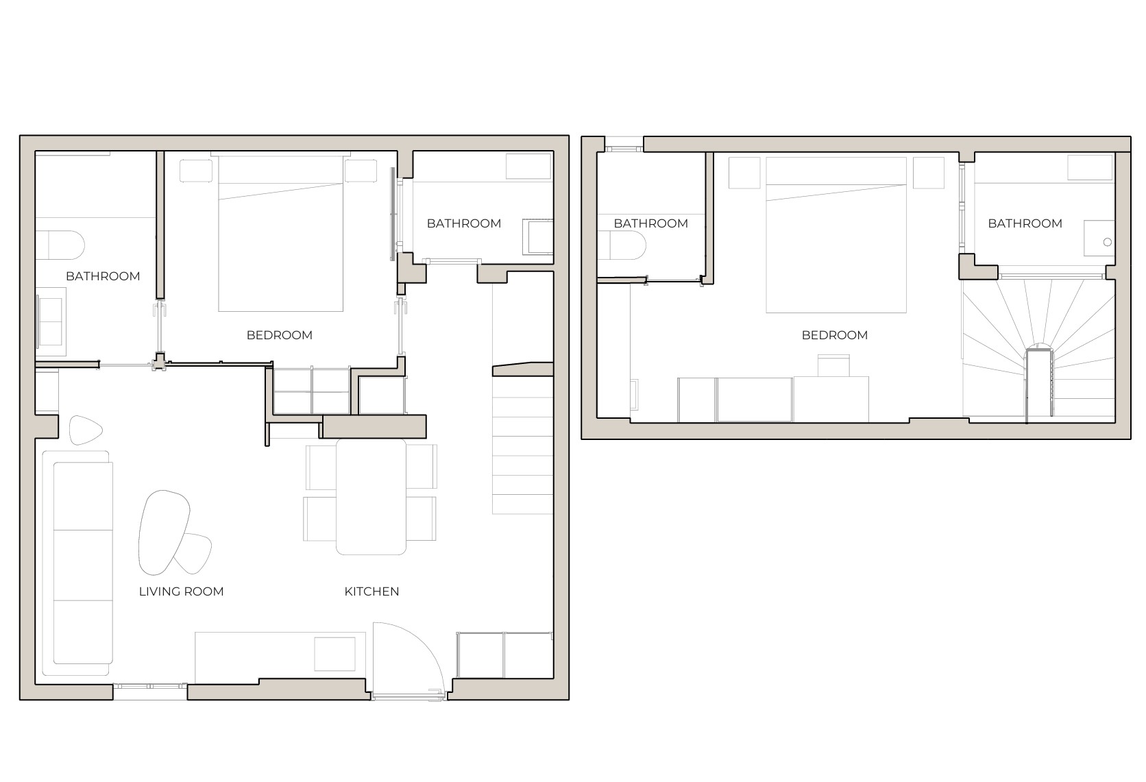
If there is a location especially demanded by our customers this is the Barrio de Salamanca. Well, it is here where this wonderful duplex apartment for rent is located, with two double bedrooms and capacity for 4 people.
Located on the first floor of a building in the well-known street Don Ramon de la Cruz, the apartment has an area of 98 m2 distributed on two floors.
We access through the first floor and we are welcomed by the social area, open plan, where comfortably coexist the living room, the dining room - with capacity for 4 people - and the kitchen, which has been fully equipped with large and small appliances, as well as varied kitchenware.
Beautiful wooden beams painted in white bring warmth to the space.
The bedroom is located next to the living room and has a double bed, fitted closets and an en-suite bathroom. This bathroom can also be accessed directly from the living room, which is very convenient for visitors, as it respects the privacy of the bedroom.
A small patio completes the rooms on the first floor.
Next to the access door of the apartment, a staircase leads to the upper floor, where the master bedroom is located, equipped with a double bed, TV, study or work table, fitted wardrobes and an en-suite bathroom.
The excellent location of this duplex apartment is undoubtedly one of its great advantages. It has a fantastic communication with the rest of the city thanks to its proximity to the Lista Metro station, which is right in front, and the great bus network that runs along the main surrounding roads. It is worth mentioning its proximity to the IE Business School, Instituto de Empresa.
Although the real privilege of the area is being able to access all kinds of stores, services and leisure activities within a short walk, without having to leave the neighborhood, which greatly facilitates the day to day.
In just 10 minutes, you can access the most exclusive stores of the most prestigious brands in the iconic Serrano Street. If you prefer a break in the middle of nature, a short walk will take you to the magnificent green surroundings of the historic Retiro Park.
* Short rental prices include supplies



































