ALQUILER DE MARAVILLOSO APARTAMENTO EN EL BARRIO SALAMANCA, JUNTO AL PARQUE EL RETIRO
Características
Equipamiento
Larga estancia
Media estancia
Corta estancia
Alquiler temporal de espectacular apartamento de 3 dormitorios completamente amueblado y equipado
Ubicado en el distinguido Barrio de Salamanca, a solo unos minutos del Parque El Retiro, se encuentra este magnífico apartamento exterior con balcones, situado en la primera planta de un edificio representativo.
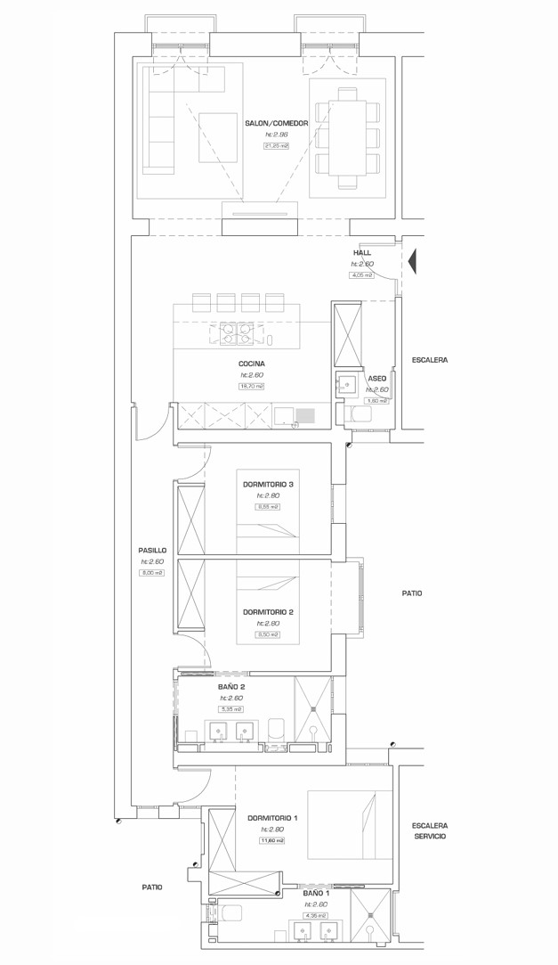
Con una superficie de 139 m² y una excelente distribución, esta vivienda de 3 amplios dormitorios dobles, 2 cuartos de baño completos y 1 aseo ofrece un hogar ideal para quienes buscan residir en uno de los barrios más exclusivos de Madrid. Completamente reformada y amueblada, la propiedad destaca por su elegante proyecto de interiorismo.
El apartamento nos recibe con un hall de entrada que conduce a la amplia y bien distribuida zona social, conformada por el salón, el comedor y la cocina semi independiente.
El salón, que cuenta con dos fantásticos balcones que dan a la calle Jorge Juan, se distribuye en dos áreas bien diferenciadas, la confortable zona de estar y el área de comedor, con capacidad para 6 comensales.
La cocina se sitúa a continuación y ha sido completamente amueblada y equipada con todo tipo de grande y pequeño electrodoméstico, así como variado menaje. Una formidable isla actúa como eje central a la vez que funciona como barra, perfecta para comidas rápidas e informales o desayunos, gracias a los 4 taburetes que la acompañan.
Un aseo junto a la cocina y al hall recibidor da servicio a las visitas.
Desde la cocina, un pasillo nos lleva a la zona de descanso de la vivienda, donde se encuentran tres amplios dormitorios dobles, todos ellos equipados con gran cama de matrimonio y generosos armarios empotrados.
El segundo dormitorio dispone de cuarto de baño en suite, al cual se puede acceder desde el propio dormitorio, así como desde el pasillo, por lo que también da servicio al tercer dormitorio.
El dormitorio principal se encuentra al final del pasillo, lo que le otorga gran privacidad, y cuenta con su propio cuarto de baño en suite.
La ubicación del inmueble es otro de sus grandes alicientes. El Barrio de Salamanca y concretamente la zona donde se sitúa este apartamento destaca por su amplia oferta de comercios y servicios de todo tipo, que facilitarán el día a día sin necesidad de salir del barrio. Además, la vasta oferta comercial de este barrio se complementa con la excelsa oferta gastronómica del Retiro, convertido en la ‘Milla de Oro Gastronómica de Madrid’.
La comunicación con el resto de la capital es otra de las grandes ventajas, con la estación de metro de Príncipe de Vergara y Goya a escasos metros, así como varias líneas de autobús con parada en las inmediaciones, como la que conduce al IE Business School, con el cual está muy bien comunicado.
Su cercanía al famoso Parque El Retiro, a tan solo 3 minutos andando, permite disfrutar de una de las zonas verdes más privilegiadas de Madrid.
*Precio de corta estancia incluye suministros
*Plano orientativo




























.webp)






