ALQUILER DE PISO EN EDIFICIO SEÑORIAL JUNTO AL PARQUE DEL RETIRO
Características
Equipamiento
Larga estancia
Media estancia
Corta estancia
Elegante apartamento en alquiler frente al parque El Retiro
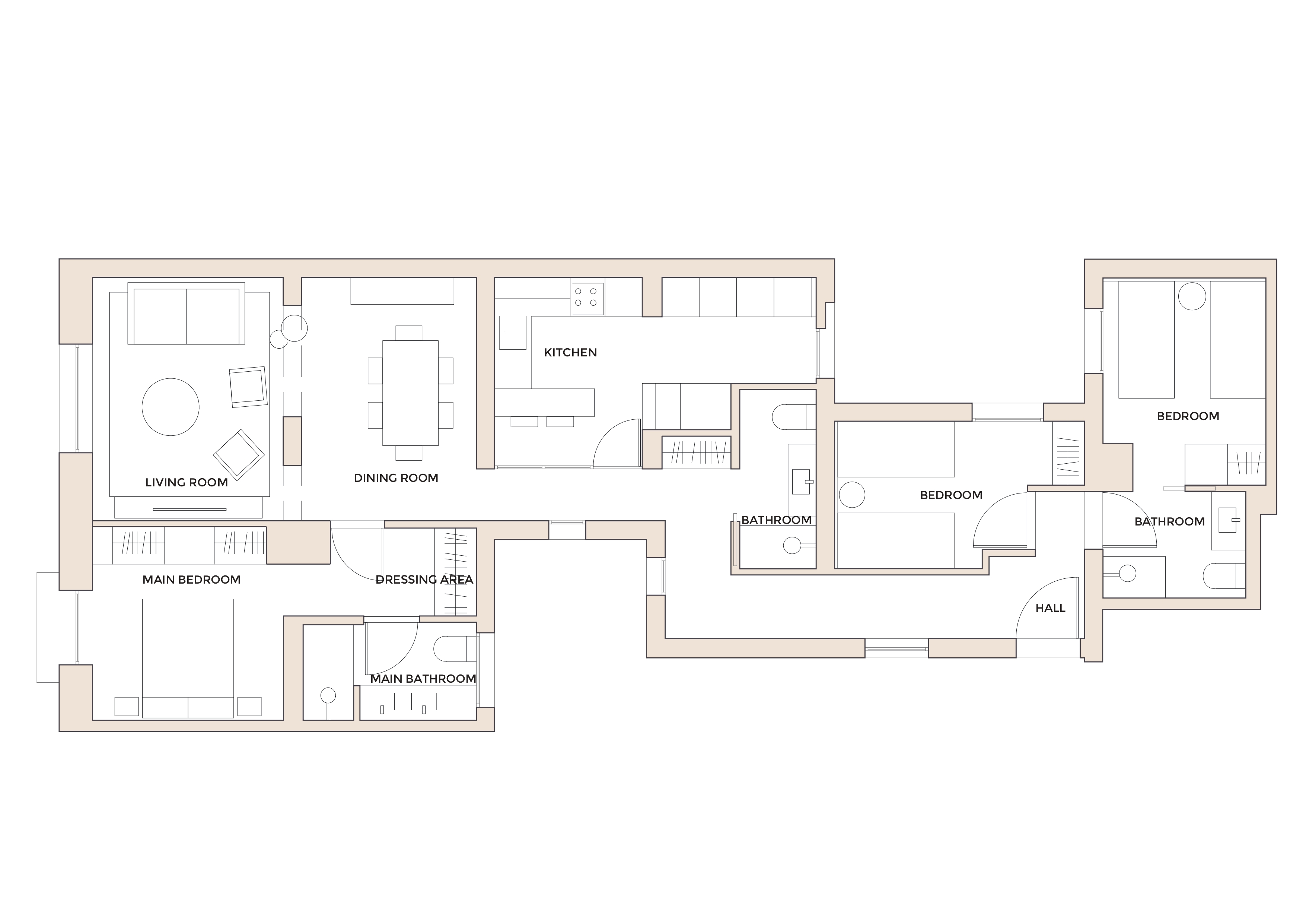
Frente al histórico y distinguido parque de El Retiro, ubicado en un señorial y representativo edificio, se encuentra este apartamento exterior de 114 m2 que consta de 3 dormitorios y 3 cuartos de baño.
La zona social de la vivienda, compuesta por la zona de estar y el comedor, goza de gran luminosidad gracias a sus grandes ventanales con vistas al Parque de El Retiro.
Frente a la zona social se encuentra el dormitorio principal, también exterior y con vistas al parque. Está equipado con una gran cama de matrimonio, un cuarto de baño completo y zona de vestidor.
Junto al comedor se ubica la moderna cocina, completamente amueblada y equipada con grande y pequeño electrodoméstico, variado menaje, una cómoda barra para comidas informales y un elegante cerramiento de cristal.
Un cuarto de baño completo situado junto a la cocina da servicio a posibles visitas, así como al segundo dormitorio que se encuentra a continuación.
El segundo dormitorio está equipado con una cama individual tipo nido, que puede convertirse en cama doble.
El tercer dormitorio cuenta con una cama individual y un cuarto de baño ensuite.
Sin duda la ubicación de este inmueble es una de sus grandes ventajas.
La indudable privilegiada ubicación, a escasos metros del Parque El Retiro, y la cercanía a representativas localizaciones como la calle Serrano o Velázquez ofrecen una exclusiva experiencia que se completa con la gran variedad de comercios y ofertas gastronómicas de la zona.
La estación de metro de Ibiza además de varias líneas de autobús facilita su comunicación con el resto de la ciudad.


































