APARTAMENTO CON BONITO DISEÑO EN BARRIO SALAMANCA
Características

Equipamiento
Larga estancia
Media estancia
Corta estancia
Conoce los detalles de la vivienda
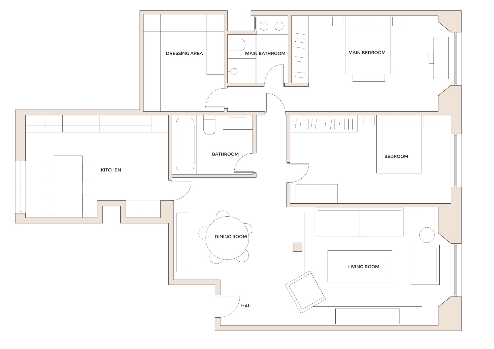
En uno de los enclaves más exclusivos del barrio de Salamanca sorprende este sofisticado y acogedor apartamento situado en un representativo edificio junto al reconocido Mercado de Platea, mayor centro de ocio gastronómico de Europa.
En primer lugar, recibe el área social de la vivienda presentando el salón en planta abierta acompañado del comedor que se encuentra en la zona más próxima a la cocina. La misma, está totalmente equipada con grande y pequeño electrodoméstico y dispone de una barra con tres taburetes ideal para desayunos y comidas. Además, en el caso de ser necesario, cuenta con puerta de servicio por la que se accede al montacargas del edificio.
Desde el salón, un insinuado corto pasillo introduce ala zona privada. La suite principal disfruta de gran tamaño, lo que ha permitido organizar el espacio en cuatro ambientes diferenciados; la zona de descanso formada por una cama matrimonial (180x200 cm), un rincón de trabajo, el cuarto de baño en suite y por último un espacioso vestidor.
El segundo dormitorio, cuenta con una cama doble (150x200 cm) y dispone de cuarto de baño justo enfrente que funciona a su vez como aseo de cortesía por su situación próxima a la zona social.
La ubicación es otra de las grandes ventajas de este apartamento, situado en una de las zonas más distinguidas de nuestra capital, perfectamente comunicada con el resto de los barrios por transporte público, con las estaciones de metro de Serrano y Colón a escasos pasos, así como variedad de líneas de autobús en las vías circundantes.
*Precio corta estancia incluye suministros
































