ALQUILER DE EXCLUSIVO APARTAMENTO SEÑORIAL CON TERRAZA EN PINTOR ROSALES
Características
Equipamiento
Larga estancia
Media estancia
Corta estancia
ALQUILER DE EXCLUSIVO APARTAMENTO SEÑORIAL CON TERRAZA EN PINTOR ROSALES
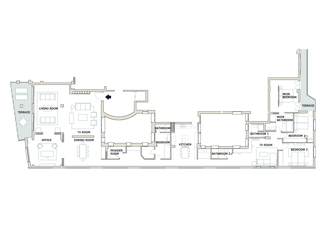
En el maravilloso Paseo del Pintor Rosales, flanqueado por el Barrio Chamberí y el Parque del Oeste, uno de los grandes pulmones verdes de Madrid, encontramos este gran apartamento señorial, exterior, con dos terrazas y capacidad para 7 personas, gracias a los 4 dormitorios, 4 cuartos de baño y 1 aseo de los que dispone, ofreciendo un fantástico hogar para una familia que busque tranquilidad y buena calidad de vida en la ciudad.
Con una superficie de 364 m², esta elegante vivienda se distingue por una distribución funcional, donde la zona social y la privada están claramente diferenciadas, garantizando comodidad e intimidad. Ubicada en la sexta planta de un edificio señorial con ascensor y servicio de conserjería, la entrada a la propiedad da paso a un sofisticado hall que actúa como antesala a un área social de gran amplitud y luminosidad.
Ésta se divide en varios ambientes, puesto que consta de un gran comedor, con capacidad para 8 comensales, una distinguida y bien dimensionada sala de estar con dos ambientes, uno de ellos perfecto para relajarse y ver la televisión, y otro ideal para reuniones y recibir visitas. Junto al salón encontramos un gran despacho con puertas correderas que permiten integrarlo o independizarlo según la ocasión. A través del despacho podemos acceder a la terraza, con unas impresionantes vistas al Parque del Oeste.
Un aseo de cortesía da servicio a las visitas.
Un elegante pasillo nos guía hacia la zona privada de la vivienda. En primer lugar, encontramos un dormitorio individual con baño en suite, mesa de estudio y armario empotrado, ideal como habitación de servicio o para visitas ocasionales. Seguidamente, se sitúa la cocina, completamente amueblada y equipada con grande y pequeño electrodoméstico y un variado menaje. Su diseño funcional incluye una gran isla central con doble función de superficie de trabajo y almacenamiento, además de una cómoda mesa con capacidad para cuatro personas, perfecta para comidas informales en el día a día.
Continuando por el pasillo descubrimos un baño completo y una sala de estar para relajarse o ver la televisión, que además cuenta con una práctica zona de trabajo o estudio
A continuación, se ubican dos dormitorios dobles, ambos muy luminosos y equipados con amplias camas de matrimonio y armarios empotrados. Uno de ellos dispone además de una mesa de estudio y acceso a la segunda terraza de la vivienda. Un cuarto de baño completo da servicio a estos dos dormitorios.
Finalmente, llegamos al espectacular dormitorio principal. Esta estancia cuenta con una amplia cama de matrimonio, una gran zona de vestidor, un elegante cuarto de baño en suite y acceso directo a la terraza.
El diseño de interior de esta residencia ha sido cuidadosamente elaborado para realzar su carácter señorial, combinando elementos clásicos con acabados de alta calidad.
La ubicación es una de las grandes ventajas de esta propiedad. Si bien, se trata de una zona muy tranquila y más residencial, a escasos metros disfruta de gran variedad de tiendas, bares y restaurantes, locales de salud y belleza, gimnasios y todo tipo de servicios que facilitarán el día a día sin necesidad de salir del barrio.
Además, se encuentra muy bien comunicado con otros barrios con las estaciones de metro Argüelles y Moncloa, a solo unos minutos, así como varias líneas de autobús recorren las calles circundantes.
También es muy conveniente para aquellos ejecutivos que trabajan en el entorno de la Autopista A-6, a la que se accede con suma facilidad.
En definitiva, un hogar único, diseñado para satisfacer las expectativas de los clientes más exigentes que buscan elegancia, amplitud y una ubicación inmejorable en el corazón de Madrid.
*Precio de corta estancia incluye suministros
*Plano Orientativo
































