MAGNÍFICO APARTAMENTO SEÑORIAL CON TERRAZA EN ALQUILER EN PINTOR ROSALES
Características
Equipamiento
Larga estancia
Media estancia
Corta estancia
Alquiler de gran apartamento familiar, exterior, con 5 dormitorios, junto al Parque del Oeste
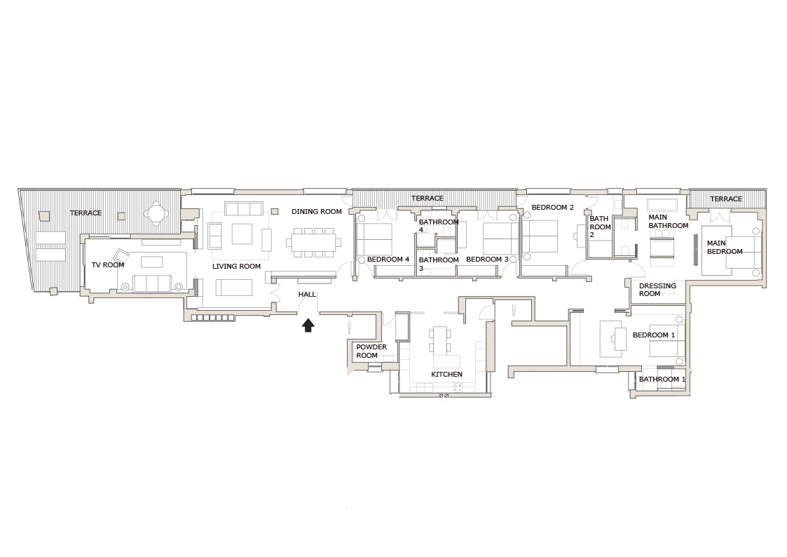
En el maravilloso Paseo del Pintor Rosales, flanqueado por el Barrio Chamberí y el Parque del Oeste, uno de los grandes pulmones verdes de Madrid, encontramos este gran apartamento señorial, exterior, con tres terrazas y capacidad para 10 personas, gracias a los 5 dormitorios, 5 cuartos de baño y 1 aseo de los que dispone, ofreciendo un fantástico hogar para una familia que busque amplitud, tranquilidad y buena calidad de vida en Madrid.
Con una superficie de 372 m² esta elegante vivienda completamente reformada presenta una distribución funcional, donde la zona social y la privada están claramente diferenciadas, garantizando comodidad e intimidad. Ubicada en la sexta planta de un edificio señorial con ascensor y servicio de conserjería, la entrada a la propiedad da paso a un distinguido hall que actúa como antesala a un área social muy amplia y luminosa.
Ésta se divide en varios ambientes, entre los que encontramos un gran comedor, con capacidad para 8 comensales, una distinguida y bien dimensionada sala de estar con dos áreas bien diferenciadas, una de ellas destinada a relajarse y ver la televisión, mientras que la otra es perfecta para reuniones y recibir visitas. Junto al salón encontramos una segunda sala de estar con puertas correderas, permitiendo que quede integrada o independiente, según la ocasión lo requiera. Desde aquí accedemos a una magnífica terraza en esquina, cuyas vistas panorámicas al Parque del Oeste son realmente espectaculares.
Un aseo de cortesía da servicio a las visitas.
Un elegante pasillo nos guía hacia la zona privada de la vivienda.
En primer lugar se ubica la cocina, totalmente amueblada y equipada con grande y pequeño electrodoméstico y un completo y variado menaje. Su diseño funcional incluye una gran isla central con doble función de superficie de trabajo y almacenamiento, además de una cómoda mesa con capacidad para cuatro personas, muy cómoda para comidas informales en el día a día.
Frente a la cocina encontramos dos dormitorios dobles, ambos con gran cama matrimonial, armarios empotrados, su propio cuarto de baño en suite, y acceso a la segunda terraza de la que dispone la vivienda.
El tercer dormitorio está a continuación y presenta dos camas individuales unidas, armario empotrado y cuarto de baño ensuite.
El cuarto dormitorio, muy amplio, está equipado con cama matrimonial, gran mesa de trabajo, armarios empotrados y cuarto de baño en suite.
Finalmente llegamos al dormitorio principal, el cual esrealmente espectacular y de muy generosas dimensiones. Dispone de gran cama dematrimonio, acceso directo a la terraza, un elegante cuarto de baño en suite con zona de tocador, ducha y bañera, y completa la estancia un amplio vestidor.
El diseño de interior de esta exclusiva vivienda ha sido cuidadosamente elaborado para realzar su carácter señorial, combinando elementos clásicos con acabados de alta calidad.
La ubicación es una de las grandes ventajas de esta magnífica propiedad. Si bien, se trata de una zona muy tranquila y más residencial, a escasos metros disfruta de gran variedad de tiendas, bares y restaurantes, locales de salud y belleza, gimnasios y todo tipo de servicios que facilitarán el día a día sin necesidad de salir del barrio.
Además, se encuentra muy bien comunicado con otros barrios con las estaciones de metro Argüelles y Moncloa, a solo unos minutos, así como varias líneas de autobús recorren las calles circundantes.
También es muy conveniente para aquellos ejecutivos que trabajan en el entorno de la Autopista A-6, a la que se accede con suma facilidad.
En definitiva, un hogar único, diseñado para satisfacer las expectativas de los clientes más exigentes que buscan elegancia, amplitud y una ubicación inmejorable en el corazón de Madrid.
* Precio de corta estancia incluye suministros
* Plano orientativo




























.webp)




