PISO CON TERRAZA Y PISCINA EN CASTELLANA
Características
Equipamiento
Larga estancia
Media estancia
Corta estancia
Conoce este ático de lujo con terraza y piscina
En pleno Paseo de la Castellana, uno de los ejes fundamentales de Madrid, encontramos este espectacular apartamento exterior desde el que podremos observar unas increíbles vistas de la mencionada gran avenida.
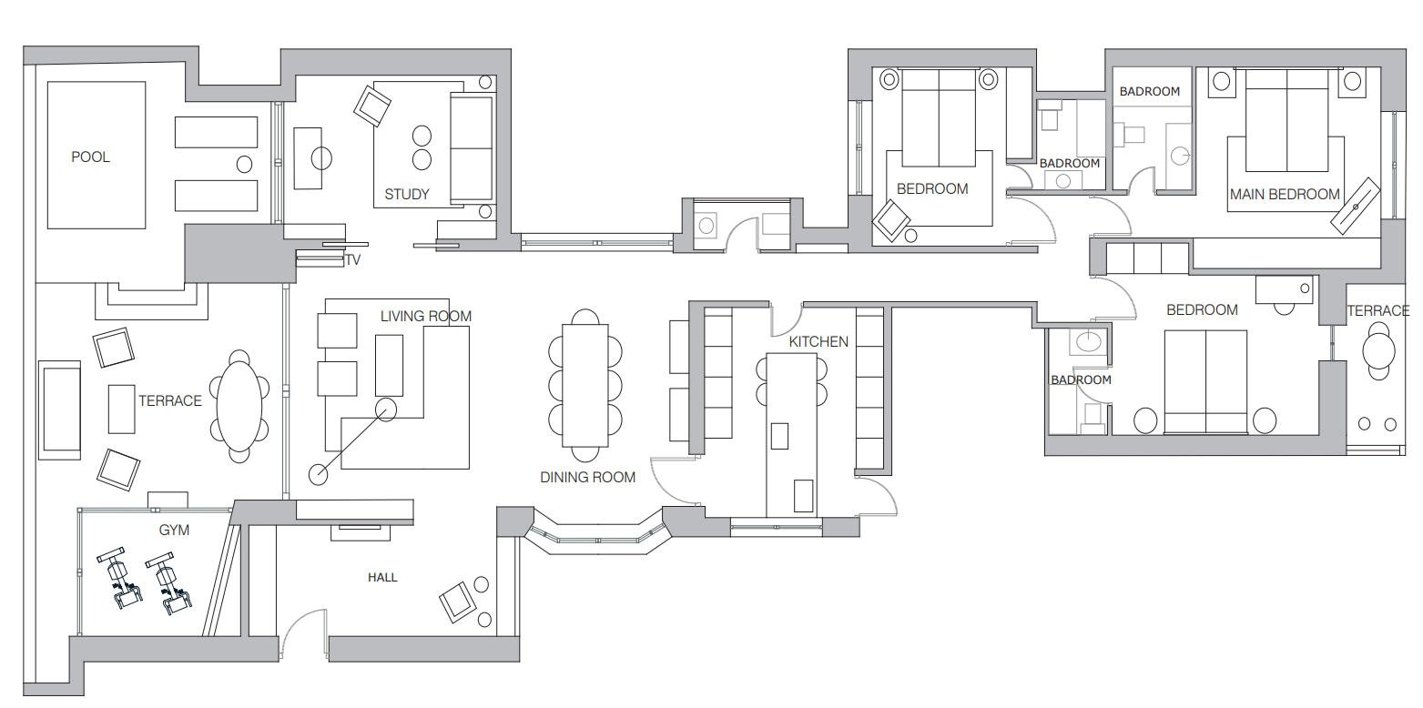
La verdadera protagonista de esta vivienda es la gran terraza que enmarca el área social. Está compuesta por una zona de comedor, un chill out, una pequeña piscina donde darse un baño y un espacio cubierto donde poder hacer deporte.
El salón es la continuación de la misma, está dispuesto en estancias diferenciadas, el hall donde se reciben los invitados, la sala de estar compuesta por un acogedor sofá, una pequeña sala de estudio con puertas correderas que puede hacer función de cuarto de invitados ya que cuenta con sofá cama (90x190 cm) y por último el comedor con comunicación directa a la cocina.
Un largo pasillo introduce a la parte privada de la vivienda, aunque en primer lugar encontramos un pequeño aseo que da servicio a nuestros invitados dotando así de privacidad al resto de la casa.
Seguidamente, encontramos un segundo acceso a la cocina que evita pasar por las zonas comunes. Está totalmente equipada con grande y pequeño electrodoméstico además de un variado menaje.
Al final del pasillo, descansan los tres dormitorios; todos ellos cuentan con su propio cuarto de baño en suite. El principal cuenta con una cama de matrimonio (180x200 cm), con arcón bajo el colchón, formada por dos camas individuales con posibilidad de separarlas bajo petición. El segundo, dispone de dos camas individuales (90x200 cm) con arcón bajo el colchón que podrían unirse si se desea. Y, por último, el tercer dormitorio tiene una cama de matrimonio (150x190 cm).
Su ubicación es inmejorable, pues se encuentra situado a escasos metros del gran intercambiador de metro y trenes de cercanías de Nuevos Ministerios; lo que permite el rápido acceso al aeropuerto de Madrid-Barajas mediante línea directa, así como a cualquier barrio de la capital, localizaciones de la comunidad o incluso a otras ciudades.
La zona ofrece gran variedad de servicios que facilitan el día a día sin apenas necesidad de trasladarse. Entre ellos se puede destacar uno de los más grandes almacenes de la capital, El Corte Inglés de Castellana, al igual que todo tipo de comercios, cafés, restaurantes, supermercados, gimnasios y centros de salud y belleza entre otros.
Merece la pena destacar su proximidad mediante transporte público al prestigioso IE Business School e IE University (Instituto de Empresa), al que se accede cómodamente mediante autobús o metro.
*Precio corta estancia incluye suministros
*Plano orientativo































.webp)



