APARTAMENTO EN ALQULER CON PISCINA EN GUINDALERA
Características

Equipamiento
Larga estancia
Media estancia
Corta estancia
Apartamento de 2 dormitorios con piscina, completamente amueblado, en Guindalera
Situado en el prestigioso Barrio de Salamanca, en una finca de nueva construcción, encontramos este fantástico apartamento exterior de dos dormitorios y dos cuartos de baño, que además dispone de terraza, trastero, plaza de garaje y piscina.
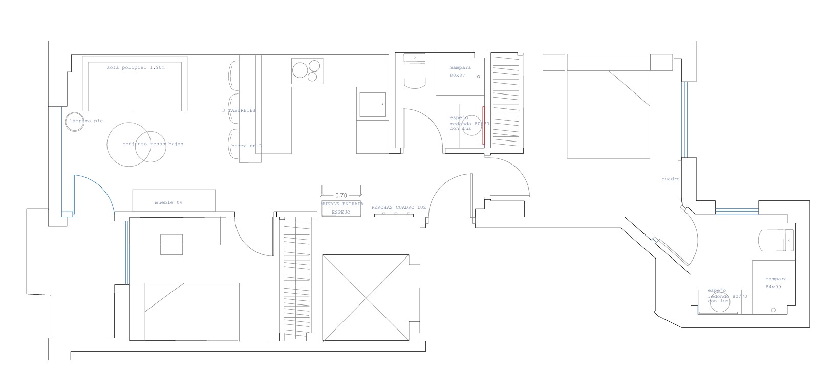
El apartamento consta una superficie de 58 m2 que se ha aprovechado al máximo. Accedemos a la vivienda y a mano izquierda encontramos la cocina, de planta abierta, la cual ha sido completamente amueblada y equipada con variado menaje, así como grande y pequeño electrodoméstico. Una cómoda barra funciona como mesa de comedor, a la vez separa la cocina de la zona de salón. La luz natural inunda el espacio gracias a enormes ventanales de suelo a techo, que a su vez dan acceso a la terraza.
El dormitorio secundario, situado junto a salón, ha sido equipado con cama de 105x200 cm y cuenta con una cómoda mesa de estudio. Un cuarto de baño completo situado junto a la cocina da servicio tanto al segundo dormitorio como a las visitas.
El dormitorio principal se ubica en el lado opuesto de la vivienda, lo que le confiere gran privacidad y tranquilidad. Cuenta con una amplia cama matrimonial de 150x200 cm, un bonito balcón y completa la estancia un cuarto de baño ensuite.
La finca, de nueva construcción, dispone de piscina, lo cual supone un gran aliciente en los calurosos meses de verano en Madrid.
La ubicación del apartamento es otra de sus grandes ventajas; está muy bien comunicado por transporte público con el resto de la capital con la estación de metro Diego de León y Cartagena solo unos minutos, y a cualquier destino internacional, gracias a su cercanía al intercambiador de Avenida de América, a tan solo 7 minutos, cuya conexión con el aeropuerto de Madrid-Barajas es directa.
En las inmediaciones podemos encontrar tiendas, supermercados, bares y restaurantes, cual que facilita el día a día en la vecindad.
*Precio de corta estancia incluye suministros
*Plaza de garaje y trastero bajo petición. Consultar disponibilidad
*Plano orientativo























-compressed.jpeg)









