Exclusivo piso de diseño en venta, de reciente construcción, totalmente amueblado y con piscina, en Chamberí
Características
Precio
Exclusiva oportunidad en Chamberí: Fantástico apartamento de 2 dormitorios con excelentes zonas comunes: piscina y gimnasio
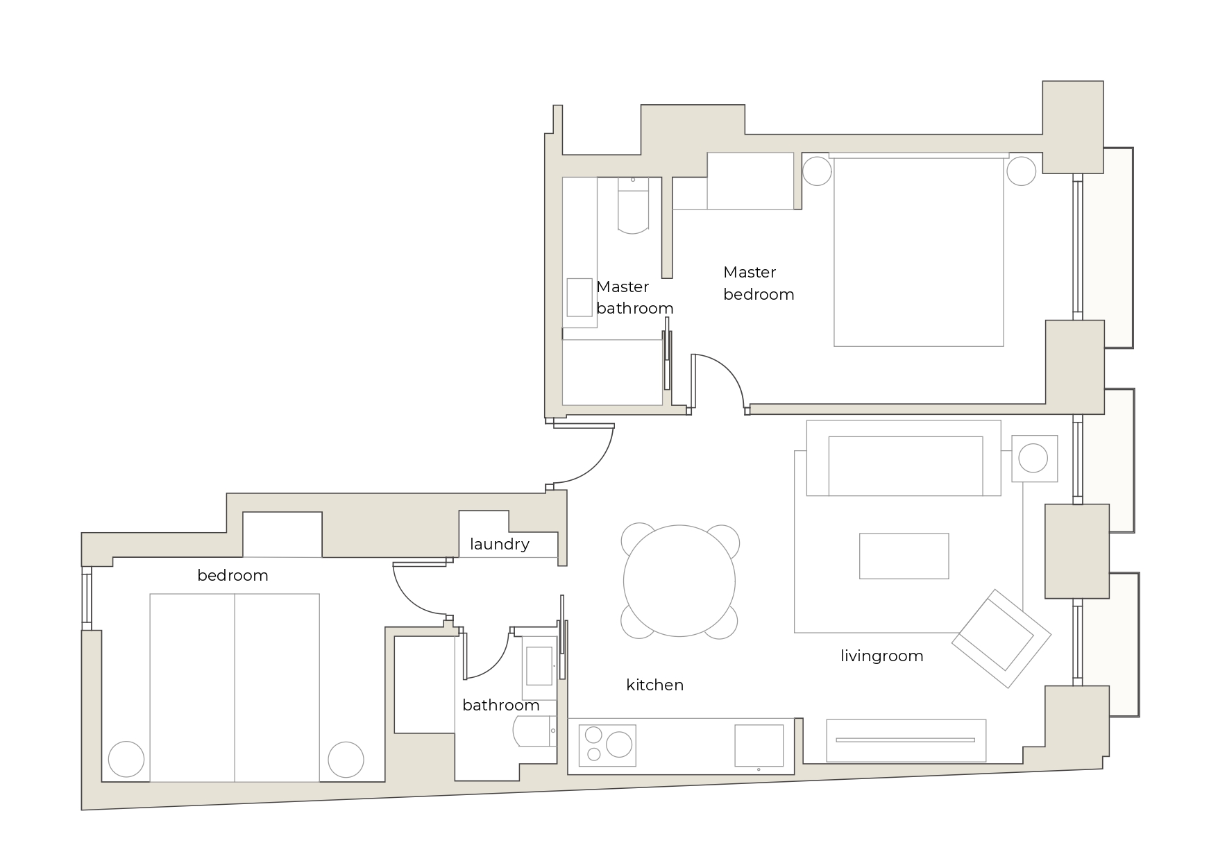
-123m2 catastrales: 78m2 de vivienda y 45m2 de zonas comunes
-Completamente amueblado y equipado para entrada inmediata
-2 dormitorios
-2 baños completos
-Aire acondicionado por conducto
-Agua caliente por caldera central del edificio
-Calefacción por suelo radiante
-Portero de lunes a viernes
-Zonas comunes cuentan con:
*Piscina
*Gimnasio
*Trastero
-Edificio del 2023-IBI 801€/año
-Gastos de comunidad 253€/mes
-Alquilado hasta el 28 de febrero por 3.000€/mes
Vivir en Chamberí ya es un privilegio, pero hacerlo en un edificio de reciente construcción, con piscina, gimnasio, jardines y conserje, es algo realmente excepcional. Este espectacular apartamento exterior de 123 m²te ofrece exactamente eso: un hogar moderno, luminoso y listo para entrar a vivir en una de las zonas más deseadas de Madrid.
Nada más acceder a la vivienda, la luz natural te envuelve gracias a los balcones exteriores que iluminan toda la zona social. La cocina abierta - completamente amueblada y equipada- fluye hacia el comedor y el salón, creando un espacio amplio, cálido y perfecto para disfrutar, relajarte o recibir invitados. Cada detalle está pensado para aportar comodidad desde el primer día.
El dormitorio principal, también exterior y con su propio balcón, disfruta de una agradable luminosidad y cuenta con un cuarto de baño en-suite. El segundo dormitorio, situado junto a la entrada, dispone de cama matrimonial y un baño completo adyacente que da servicio tanto a este espacio como a las visitas.
Pero lo que realmente hace única a esta propiedad va más allá de sus interiores. La finca, construida en 2023, ofrece un estilo de vida difícil de encontrar en pleno centro: piscina para desconectar en verano, gimnasio para entrenar sin salir de casa, zonas ajardinadas para relajarte y un trastero que aporta ese espacio extra que siempre se agradece. Todo ello con conserje y una ubicación inmejorable, rodeada de tiendas, restaurantes, servicios y excelentes conexiones de transporte.
Este apartamento no es solo una vivienda: es una oportunidad para disfrutar de una vida cómoda, moderna y llena de luz en uno de los barrios con más encanto de Madrid.































