PISO EN ALQUILER JUNTO AL PARQUE DEL RETIRO
Características
Equipamiento
Larga estancia
Media estancia
Corta estancia
Conoce los detalles de este apartamento exterior
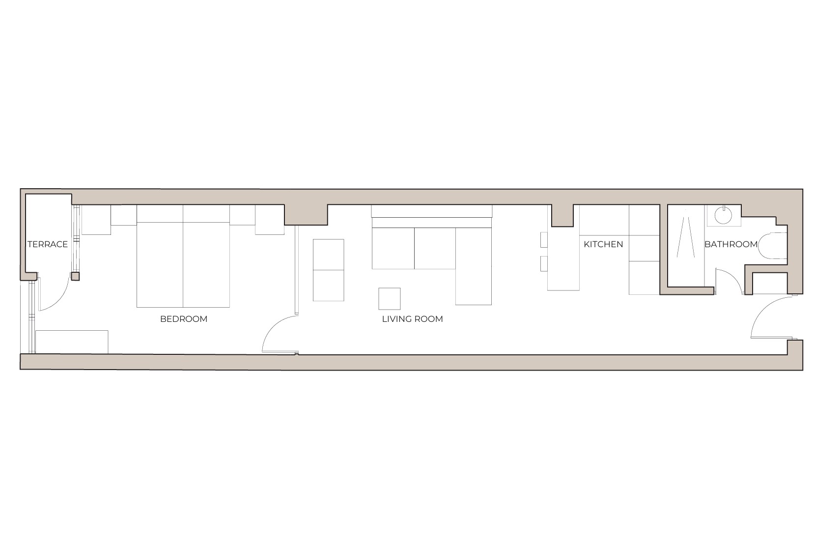
En el exclusivo trayecto que comunica el parque del Buen Retiro con el Museo del Prado se encuentra este exterior y acogedor apartamento de un dormitorio, un cuarto de baño y un sofá cama.
Sus 54 metros cuadrados ofrecen el salón en la zona central de la vivienda, acompañada por una cocina muy práctica totalmente equipada con grande y pequeño electrodoméstico y un variado menaje.
Al final de la estancia, encontramos el dormitorio separado del salón por un moderno cerramiento de hierro y cristal. Dispone de una cama de matrimonio (180x200 cm) formada por dos camas individuales ambas con arcón bajo el colchón y un luminoso escritorio bajo un gran ventanal acompañado de un pequeño balcón.
El cuarto de baño se sitúa en la entrada delapartamento dando servicio tanto a la habitación como a los invitados quepuedan visitar la vivienda.
La ubicación es algo que no se debe pasar por alto, sesitúa entre calles muy emblemáticas de la ciudad de Madrid.
Además, la estación de tren y metro de Atocha seencuentra tan solo a un corto paseo y está perfectamente comunicado con otrosdistritos como el barrio de Salamanca por numerosas líneas de autobús.
Una selecta oferta de restaurantes y cafés encuentran hueco entre los maravillosos edificios centenarios que visten este barrio tan cotizado entre la aristocracia madrileña y los grandes empresarios internacionales.
*Precio corta estancia incluye suministros

















