ELEGANTE APARTAMENTO EN ALQUILER JUNTO AL PARQUE EL RETIRO
Características
Equipamiento
Larga estancia
Media estancia
Corta estancia
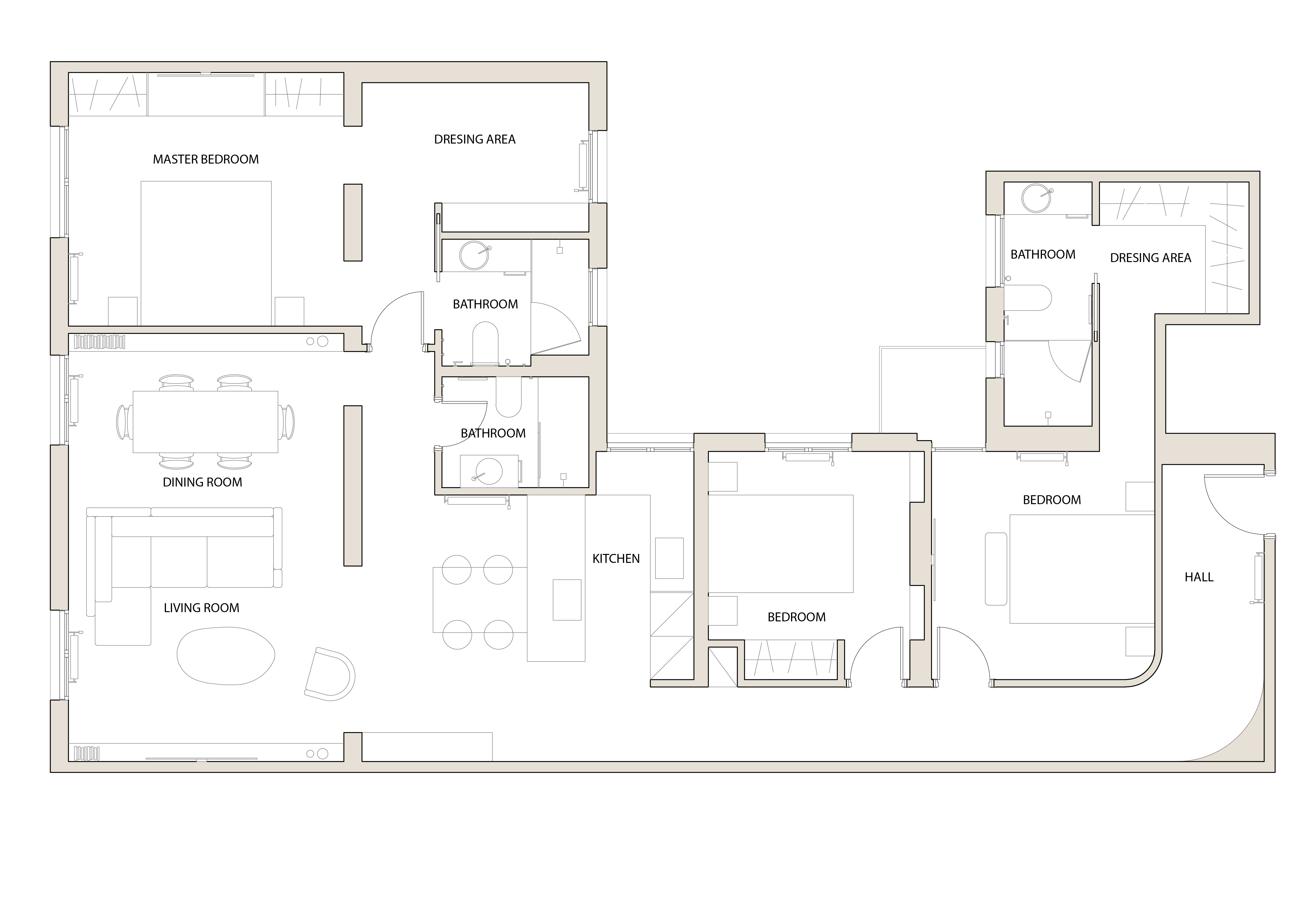
Apartamento de 3 dormitorios, completamente reformado y amueblado en Retiro
Ubicado en la tercera planta de un edificio con ascensor y servicio de conserjería, y a un corto paseo de 10 minutos del Parque El Retiro, este elegante apartamento exterior de 147 m² ha sido completamente reformado para ofrecer un espacio moderno y funcional.
Con capacidad para 6 personas, dispone de 3 dormitorios dobles y 3 cuartos baños completos.
La distribución de este apartamento ha sido convenientemente diseñada para aprovechar al máximo el espacio. Accedemos a la vivienda y un hall nos guía hacia el primer dormitorio, que dispone de una amplia cama matrimonial, vestidor y cuarto de baño en suite.
A continuación, se encuentra el segundo dormitorio, equipado con cama de matrimonio y armarios empotrados.
Avanzando por el pasillo llegamos a la elegante y amplia zona social, donde conviven cómodamente en un espacio abierto, pero bien diferenciado, la cocina, el salón y el comedor.
La moderna cocina está completamente amueblada y equipada con grande y pequeño electrodoméstico y gran variedad de menaje. Una cómoda barra permite desayunos o comidas rápidas e informales a la vez que delimita visualmente el área del salón.
El elegante salón se distribuye en dos ambientes, la cómoda zona de estar, perfecta para relajarse o recibir visitas, y el comedor, con capacidad para 6 comensales.
Finalmente, llegamos al dormitorio principal de la vivienda, de generosas dimensiones, el cual ha sido equipado con cama matrimonial, un gran vestidor y cuarto de baño en suite.
La ubicación de esta magnífica vivienda es, sin duda, privilegiada. El distrito Retiro destaca por su amplia oferta de comercios y servicios de todo tipo, que facilitan el día a día sin necesidad de salir del barrio. Además, la vasta oferta comercial de este barrio se complementa con la gran oferta gastronómica de la zona.
Su excelente comunicación permite moverse fácilmente por la ciudad, con las estaciones de metro de Ibiza y O’donnell a tan solo 7 minutos, así como varias líneas de autobús con parada en las inmediaciones,
Por último, su cercanía al Parque El Retiro, uno de los pulmones verdes más emblemáticos de Madrid, brinda la oportunidad de disfrutar de la naturaleza y el aire libre a pocos minutos de casa.
*Precio corta estancia incluye suministros
*Plano orientativo
































%25205_ESCAPARATE.webp)


