ESPECTACULAR PISO DE DOS DORMITORIO EN CHAMBERÍ
Características

Equipamiento
Larga estancia
Media estancia
Corta estancia
Fantástico piso en alquiler, muy luminoso y completamente reformado
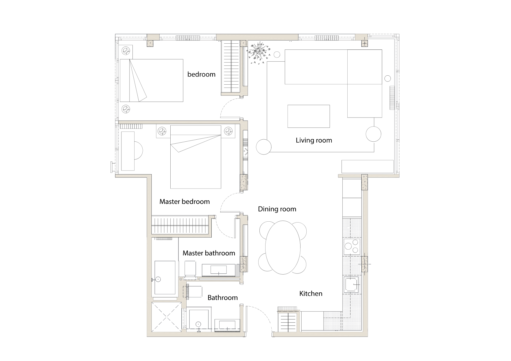
Ubicado en el histórico Distrito de Chamberí, en el Barrio de Ríos Rosas, se encuentra este magnífico apartamento en la primera planta de un edificio con ascensor. Con capacidad para 4 personas, gracias a sus dos dormitorios dobles, este apartamento ha sido completamente reformado y ofrece una superficie de 79 m² con una distribución que aprovecha al máximo el espacio.
La vivienda nos da la bienvenida con una fantástica cocina de planta abierta, equipada con electrodomésticos grandes y pequeños, así como un variado menaje. Además, dispone de una cómoda zona de comedor con capacidad para 4 personas. La cocina se integra con el área social, que disfruta de abundante luz natural y una acogedora zona de estar.
El apartamento cuenta con dos luminosos dormitorios dobles, uno de ellos con cuarto de baño en suite. Ambos dormitorios están equipados con camas matrimoniales y armarios empotrados, ofreciendo gran capacidad de almacenamiento.
Un segundo cuarto de baño, ubicado junto a la cocina, da servicio tanto al segundo dormitorio como a las visitas.
Una de las grandes ventajas de este apartamento es su inmejorable ubicación. Rodeado de numerosos bares, restaurantes y comercios, facilita el día a día. Además, se encuentra cerca de zonas verdes como el Parque de Santander, con magníficas instalaciones deportivas, y Bravo Murillo, lo cual es un privilegio en el centro de Madrid.
La vivienda está muy bien conectada con el resto de la ciudad, gracias a varias líneas de autobús a escasos metros y las estaciones de metro de Ríos Rosas, Alonso Cano, Cuatro Caminos y Nuevos Ministerios. Destaca también su proximidad al IE Business School, al cual se puede llegar con un cómodo paseo o en transporte público en apenas 15 minutos.
*Precio corta estancia incluye suministros
*Plano orientativo
































